维拓时代 | 北京硅谷电脑城改造项目
其他来源:维拓时代投稿 2019-08-30
.jpg)
当时光飞跃过北京的老城墙,我们也一路向前,身边景色变幻应接不暇,但总有几处陈影会在我们的脑海里留下印记,虽然建筑不断陈旧变老,但它还在与时俱进,旧发换新颜。北京硅谷电脑城,一座开启中关村数码时代的建筑,它又回来了。
.jpg)
位于海淀区中关村科技园的北京硅谷电脑城,于1999年5月正式建成开业,是中关村第一家专业IT卖场,开创了中关村专业电子卖场营运模式的先河。20年后的今天,它又在重新改变与时代共同进步,其改造工程已成为海淀中关村科技园西区改造的重点项目。
.jpg)
硅谷电脑城现状
20年后的北京硅谷电脑城,已不再是当初体态大方、青春靓丽的模样,形象问题更是急需解决。
.jpg)
建筑现状存在的问题
.jpg)
.jpg)
混乱破旧的外部环境
人车混行,交通混乱
室外钢梯和停车楼老旧,产生噪音污染
消防通道堆积垃圾,堵塞通行
.jpg)
.jpg)
陈旧过时的内部环境
入口阳光厅局促,钢结构形式不满足公共空间需求
商业扶梯老旧,高度位置设置不合理
小商铺管理混乱
管线铺设不合理,使3.1米层高办公环境更显压抑,设备亟待更新
客梯数量不足,办公流线不便
随着时间的磨损,建筑本身风格的过时以及设备的老旧都亟待更新,针对硅谷电脑城本身,我们对症下药,根据业主的诉求和它本身的特点制定了改造计划。
.jpg)
STEP1:多层附属楼不满足消防间距,主楼附属楼合二为一,增加中庭,打造特色共享空间。

STEP2:停车楼部分切除,增加高层主楼消防扑救面。
.jpg)
STEP3:屋面采用绿化,打造共享生态屋面活动空间。
.jpg)
STEP4:"围而不合,闭而不塞"围而不合的自然布局组团空间,使空间视野无比开阔丰富。
封闭的办公环境营造私密性,但交通流线、内部空间组织不阻塞,灵活开放,形成丰富多彩的空间层次关系。
.jpg)
STEP5:改变原始封闭狭隘的办公空间,采用开敞式、共享式的办公空间。
.jpg)
原始立面为窗墙体系,且窗户较小,办公 改造后立面改为玻璃幕墙体系,整体通透??占浣罱洗螅晒獠蛔?,室内环境昏暗。
STEP6:取消原大厅阶梯式采光顶,采用采光玻璃天窗,提升采光效果;内部增加竖向交通,提升办公品质,功能分区明确,流线顺畅不混乱。
.jpg)
STEP7:内部环境重塑。
原始的办公空间及大堂等空间已不满足现代办公需求,内部空间根据AI智能办公来进行重新设计。
.jpg)
.jpg)
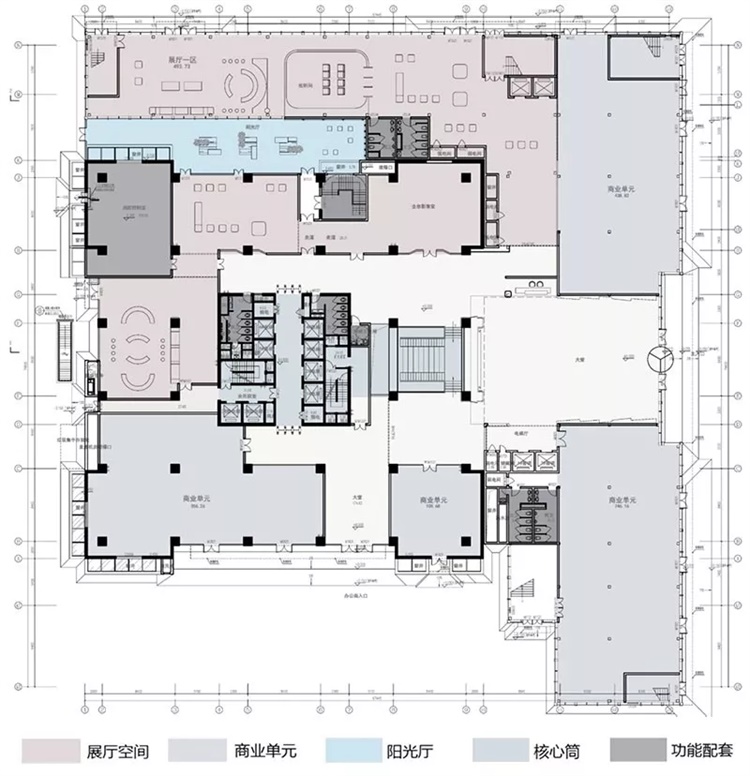
首层平面图
首层布局灵活开放,强调空间的展示性和共享性。
.jpg)
核心筒改造前后对比
改造前:
⒈标准层面积约2200㎡,单核心筒常规做法不超2000㎡。
⒉电梯数量少,运力严重不足。
⒊电梯厅空间局促,侯梯体验差。
⒋空调机房占用面积大,造成空间浪费。
改造后:
⒈增加四部客梯,达到5A写字楼舒适标准。
⒉电梯错位布置,等待人流不交叉,提升侯梯体验。
⒊电梯厅拓宽尺寸,提升侯梯体验。
⒋卫生间男女分开设置,增加蹲位,优化公共服务空间。
机电管线重布
.jpg)
⒈现状:现有建筑租户区层高3.15m,净高2.2m,受结构影响无法调整层高,可采用无吊顶设计,优化顶部管线设置,提高视觉 净高,改善办公空间。
⒉优化:机电设备的优化,设备管线贴边布置,让出走廊空间,管道可压扁加宽处理,尽量提高走廊净高,打造合理尺度办公空间。
⒊优化:设备空调采用多联机系统;采暖采用多联机+散热器
.jpg)
大堂效果
.jpg)
首层展厅走廊效果图
.jpg)
地下一层共享空间
.jpg)
南侧大堂效果图
.jpg)
首层电梯厅效果图
.jpg)
标准电梯厅效果图
.jpg)
.jpg)
卫生间效果图
.jpg)
员工餐厅效果图
.jpg)
屋顶星空吧效果图
STEP8:立面形象重塑。
原有的建筑风格已经过时,不满足现有片区整体改造风格,且材质经过时间的磨损已经损坏严重。且封闭堵塞的立面形式无法满足采光通风要求,所以摒弃原有立面,采用全新的玻璃幕墙体系,打造全新的立面形象。
.jpg)
展示性分析
本项目南立面与东立面在北四环西路有很好的展示性,东立面在颐和园路上拥有完整的展示面。
.jpg)
建筑界面提升
.jpg)
.jpg)
.jpg)
项目愿景
.jpg)
.jpg)
.jpg)
幕墙体系
THE END
随着岁月的变迁,许多事物都在慢慢老去,建筑也是,它经历了春风秋雨,它见证着这个世界发生的一切,越来越多的建筑会走向何处,我们不得而知,也许是化为灰烬,也许是重生。既有建筑改造将越来越多的出现在人们面前,作为建筑师,我们不仅要考虑它存在是为了什么,更应该考虑它是为了什么而存在,因为它也许是一代人的青春记忆,也或许是这个世界越来越好的见证者。
.jpg)
发表评论
最新评论
投稿



