网站升级中

关闭
2023建筑行业十大评选

超万名行业内专业人士实名投票

秉持客观原则的非商业化评选

江森自控亚太总部大楼

江森自控(Johnson Controls)是智慧建筑领域的领军企业,Gensler受邀为其设计位于上海的亚太地区新总部大楼。这座3.5万平方米的建筑位于长宁区虹桥临空经济园区,坐落在苏州河畔。江森自控和Gensler为该项目设定了高标准的可持续性目标,这是中国首座获得所有三项顶级可持续认证的建筑,包括美国绿色建筑协会LEED(能源与环境设计先锋奖)新建建筑铂金级认证、中国绿色建筑设计标识三星级认证和IFC-世界银行EDGE(卓越高能效设计)认证。与当地市场标准相比,这座建筑预计可节省44%的总能耗。

自项目开始之初,项目团队坚持在项目中使用领先的可持续机电和管道系统以及智慧建筑系统;同时,实现健康设计也是项目团队同样重视的目标。Gensler团队专注于建筑健康设计的三个方面:采光和视野、户外空间的可达性和社交空间的打造。除立面设计外,以上三个方面均对该建筑的造型产生着重要影响。

市场环境

中国对新办公楼的需求逐年增加,使其成为世界上最大的建筑市场。中国政府已经注意到可持续开发的重要,并要求每座超过2万平方米的新建建筑都要符合中国绿色建筑设计标识认证标准。这些行动固然是朝着应对气候变化的正确方向迈出的一大步,但同等重要的是,建筑设计应将健康设计与节能战略有机结合起来。建筑设计以人类体验为中心,是促进生产力和创新的核心,而恰逢中国正在寻找提升服务经济的新方法。在中国,制造中心正在被智慧城市所取代。江森自控亚太总部大楼是一个将节能、健康设计和智慧科技相结合的经典案例。中国经济向服务型经济转变,这意味着办公建筑的设计越来越重要。现在,办公建筑的‘质’要远高于‘量’。与美国、欧洲和日本市场一样,中国办公建筑的设计直接反映了入驻的企业和来访的客户的价值观。

正如David De Cremer和Jason D. Shaw所指出的那样,“在服务驱动型经济中,顾客不会被廉价、低质量的产品所吸引。现在,客户需要高质量的产品,为此他们愿意付更多钱。为了让你的公司脱颖而出,你有必要向客户传达你们公司产品的优点,以及它可以为客户带来哪些价值” (注释1)。这句话也完全适用于办公建筑设计。江森自控需要一个高品质的建筑来促进创新、留住现有员工、吸引新人才,并且让客户知道这是一家在设计和建造上采用尖端技术的公司。

图1:鸟瞰图;图片:Blackstation

设计和可持续设计

设计理念

该项目的场地非常狭长,由于毗邻虹桥机场,高度也被限制在了24米之内。这向设计团队提出了一个艰巨的挑战:如何在线性的场地上创建出社区感,同时优化楼面效率。团队的解决方案是打造两个长矩形建筑,以最大化采光和视野。这两个独立的建筑物以相反的方向弯曲,然后连接在一起,在中间形成一个大的中庭,作为中央社区聚集空间??哦呋啡浦型ィ鞑懵ザ纪üヌ菹嗔?,为跨社区连接、互动和身体活动提供平台。我们的研究表明,在不同的部门和业务线之间进行充分的对话,将提高生产力和鼓励创新,这也契合了江森自控不断创新的企业文化。

图2:体块分析图

场地的北侧是一个大型公共绿地。根据城市规划要求,江森自控办公园区必须通向该绿地。通过提升建筑的北翼让其悬空,通过架空地面层,设计团队在场地上建立了一条绿色的公共走道,而这也不会影响江森自控对建筑整体性的要求。设计方案为员工提供了充足的户外环境,实现了城市规划中连通绿地的要求,并为生活在密集城市中心的员工提供了与自然互动的机会。南翼建筑容纳了食堂和庭院在内的各项配套设施,帮助员工建立社区感。

图3:抬升的建筑北翼;图片:Blackstation

图4:食堂庭院; 图片:Blackstation

可持续设计

可持续发展是江森自控的核心发展理念之一。江森自控致力于利用技术解决能效问题,这可以追溯到Warren Johnson 于1883年发明的第一个电动室温控制器的专利。2018年,江森自控则成为了一家全面投资智慧建筑技术、并且在应对气候变化做出积极贡献的公司。江森自控在上海的新总部彰显了其在中国及亚太发展的信心,在可预见的未来,中国和亚洲的建筑市场将有显著增长。江森自控和Gensler共同打造了这个总部大楼,成为了中国绿色智慧建筑的典范。江森自控亚太总部是中国首座获得三项全球可持续认证的建筑:

- 美国绿色建筑协会LEED(能源与环境设计先锋奖)新建建筑铂金级认证

- 中国绿色建筑设计标识三星级认证

- IFC-世界银行EDGE(卓越高能效设计)认证

为了获得LEED铂金级和中国绿色建筑设计标识三星级认证,可持续设计是项目的首要任务,而设计方法则至关重要。项目在设计阶段和竣工阶段均获得了EDGE认证,这是中国办公建筑的首次。国际金融公司(IFC)是世界银行集团的成员,它创建了EDGE认证,以作为100多个经济体的绿色建筑认证体系。

图5:北翼办公区;图片:Blackstation

图6:中庭和天窗;图片:CreatAR

图7:与食堂庭院相连的退台露台;图片:Blackstation

健康设计

健康设计的定义和设计概念

建筑的健康设计可以定义为“对使用者的健康和功能需求产生积极影响的环境,尤其是光线和颜色的数量和质量、包围感、隐私感、窗外视野、与自然的联系,感官的多样性以及个人对环境条件的控制”(注释2)等属性。建筑健康设计本身就是一个可持续发展的目标,这在上海这样的大城市中至关重要,因为在这里,密集的城市环境对人们的工作方式是一种挑战,也不利于实现健康的生活方式。江森自控在办公环境上不吝投资,为员工提供契合公司目标的积极的办公空间。促进社交联系的空间可以促进创新,并直接有益于提升生活品质。 

Gensler团队专注于健康设计的三个方面:采光和视野,户外空间的可达性,社交空间的打造。除了功能价值外,这三个方面也都对建筑的外形产生影响。

采光和视野

长方形的楼板平面可以为室内提供充足的自然光线和良好的外部景观视线。工作位和协作区被布置在临窗位置。除了减少用于人工照明的能耗之外,自然采光还有益心理健康、改善诸如睡眠等生活品质(注释3)。建筑外部的景观对设计团队来说也很重要。绿色景观环绕建筑物,降低了城市热岛效应,同时也提供了与大自然产生视觉联系的机会,这在城市环境中非常重要。

户外空间的可达性

不管是在地面还是在楼上,整个建筑内分布可用可达的室外空间,给予员工更多选择空间,比如专注工作区域、协作区域,或者单纯地换一个环境;况且,对很多城市人来说,与自然的联系是非常匮乏的。每层楼都设有露台,人们可以在户外工作或休息。此外,一个大型的两层室外屋顶平台可以进行非正式会谈或正式的小组会议。在地面层,用餐区外的户外食堂庭院连接着毗邻苏州河的绿地。这个户外休闲区设有水景,与露台阳台在视觉上相连。分布的、可用和灵活的户外空间形成的网络,是提高生产力和幸福感的催化剂。

打造社交空间
设计团队打造了一个五层高的中央中庭空间,连接两个狭长的办公区域。中央中庭空间可以为更大的集会提供室内空间,而且每个楼层都围绕中庭通过楼梯相连,使得频繁的互动和偶然的“碰撞”更有可能。设计团队的想法是促进公司内各部门和业务线之间的对话。大量研究表明,当员工相遇的机会增加时,生产力会显著提高。建筑中庭周围的开放式动线为跨社区连接提供了平台。鼓励创新是所有这些的终极目标,而创新正是工程企业发展的核心价值观。

立面设计策略

在设计立面系统时有几个重要的考虑因素:强可持续性和能量建模目标所需要的高热性能表现,具有多向弯曲和倾斜表面的复杂几何形状所需要的适应性,向室外空间(包括阳台,露台和屋顶平台)过渡所需要的能力,处理中庭大跨度结构系统的覆层需求所需要的能力,侧重于立面边界条件以实现紧密密封的建筑围护结构。虽然该建筑有八个不同的立面系统,但最需要重点关注的是以下三个系统,这三个系统能够在可持续性能、提升健康设计和建筑物外形美观之间实现关键平衡。

立面系统1(FS-1)单元式幕墙系统

图8:具有扁平和弯曲单元的FS-1;图片:Blackstation

图9:FS-1立面图、剖面图和剖面细部

立面系统2(FS-2)首层局部的框架玻璃幕墙系统与外廊GFRC挂板幕墙系统

图10:入口和抬升处的FS-2照片;图片:Blackstation

图11:食堂的FS-2照片、平面图和剖面细节; 图片:Blackstation

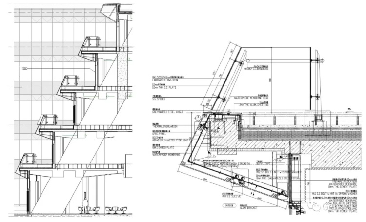
立面系统4(FS-4)异形阳台系统

图12:FS-4部分和细节

图13:FS-4照片;图片:Blackstation

总结

为了理解建筑立面的细节和组成部分,首先必须上升一个维度,去了解决定性能价值、材料选择和设计兼容性的大背景。对于江森自控亚太总部而言,首先要关注的是中国的市场环境,需要在建筑行业的高速增长和提升建筑品质的需求之间找到平衡。人们越来越关注办公环境,如采光、户外空间的可达性和社交空间的打造等,这就促进了健康设计概念的普及,这对于员工的生产力、创新、健康状况以及公司对顶级人才的吸引力而言,影响可能是巨大的。在立面设计中,设计团队需要更多关注采光策略、如何处理不透明玻璃和有效板块的边界过渡以及细化外部空间。

可持续的设计目标是不可以被忽视的,建筑外围护结构是整体节能性能的重要组成。在可持续评级、跟踪设施成本和投资回报方面,许多可持续设计成果成为了建筑的对外形象的重要指标。在这个项目的立面系统策略中,设计团队一直致力于简化细节以提高策略的可实施性,这也是该项目立面策略成功的重要原因之一。在几何形状的复杂性和高性能目标上,设计团队从未妥协,而是对其进行了精细调整和优先排序。

参考资料

1. D. De Cremer和J. Shaw,“中国转向服务经济,这对管理者来说意味着什么”,《哈佛商业评论》,2016年7月26日。

2. WBDG生产委员会,美国国家建筑科学研究院,“促进健康和幸福”,《整体建筑设计指南》,2016年11月18日。

3. M.Boubekri,I.Cheung,K.Reid,N.Kuo,C.Wang,P.Zee,“窗户和日光照射对办公室工作人员整体健康和睡眠质量的影响:病例对照试验研究”,期刊《临床睡眠医学》,2014年1月1日。

本站申明:网友阅读本站内容,视为认同本站协议,协议详情请点击查看
标签:genslerGENSLER晋思Gensler办公总部设计江森自控

发表评论

最新评论