网站升级中

关闭
2023建筑行业十大评选

超万名行业内专业人士实名投票

秉持客观原则的非商业化评选

合肥京东方医院

项目概况

合肥京东方医院

Hefei BOE Hospital

地点:中国,合肥

业主:京东方科技集团(BOE)

管理顾问:Dignity Health

总建筑面积:193,400平方米

总住院床位数:1,000张

楼层数:1号住院楼16层,2号住院楼13层

服务范围:总体规划、空间任务书、建筑设计、医疗流程策划、室内设计

合肥京东方医院是由京东方科技集团(BOE)投资建设,并与美国顶级非营利性医疗管理机构Dignity Health深度合作,以HKS精心挑选的设计师、建筑师团队与承包商、咨询顾问通力合作下,为合肥人民规划、创造并交付的一所世界级前沿数字医院。

项目背景

美国顶尖的非营利性医疗管理机构Dignity Health是合肥京东方医院的医疗顾问,负责从策划到建成后试运营的全方位咨询服务——制定医院运营机制与规划科室建设;设计与建设;IT服务。作为Dignity Health在美国超过20年的长期合作伙伴,同时在中国有众多成功的设计案例,HKS受邀成为合肥京东方医院的设计方。

HKS在项目总体规划、方案设计、室内设计、施工图审查、施工配合过程中提供了全方位的深度服务,包括方案设计阶段水电暖通等全工种的配合;以及在施工阶段中,设计师赴现场负责解决现场施工中所涉及到的设计相关问题。

设计理念

合肥京东方医院以简约、高科技、疗愈花园设计,注重患者体验为设计理念,致力于为合肥创建出一所世界一流的智能化医院。

作为一家核心业务为显示和传感器件、智慧系统的高科技公司,京东方的目标是将其健康服务业务包括医院建设、小型医疗器械研发等发展为未来的主营业务。合肥京东方医院采用智能系统、信息集成和科技化护理等技术,以实现世界一流高科技医院的目标愿景。

合肥京东方医院从屋顶到地面的多处花园设计,以可持续场地连接了室内和室外空间,自然舒适的空间氛围兼顾了患者、家属和医护人员的体验。应用循证设计,建筑师将空间功能和组织流线进行适当的融合与隔离,团队致力于为病人及访客营造出高品质的安全有效的医疗环境,同时也为医护人员提供一个优良的工作环境。

在京东方简约的企业文化下,建筑、空间、标识系统和动线设计也都保持简约且明确的设计风格。医疗规划遵循建立有效灵活的空间以符合未来的发展,对绝大多数高端医疗技术的发展适应性强,易于满足远期扩建的需求。

建筑单体设计

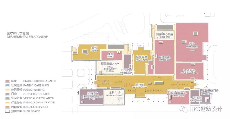
门诊楼未来将会面临整个医院最大的人流量。因此,医院主入口位于两栋门诊大楼之间,直达医院内部公共街区-医疗街。 医疗街作为分流病人、家属及医护人员的空间枢纽,引导大量人流进入门诊楼的东西翼, 连接从地下室到地面层的竖向交通, 提供医院所需的商业功能,并且连接门诊楼到医院北侧的医技楼。医院的主要功能如急诊部、放射科和手术部均位于医技楼内。住院楼位于医技楼上部以加强彼此之间的联系。

位于地块北面的住院楼将北面的湖景尽收眼底,而位于住院楼南侧的屋顶花园也为南向病房提供令人赏心悦目的屋顶绿化景观。住院楼出入口位于两栋住院楼之间,易于识别,方便病人到达任何一栋楼内。

建筑整体与立面造型以简洁干净,高科技感强烈的线条为主。地面层和较低楼层的墙面以天然石材为主,无论从色彩还是材质都给整个建筑带来温暖的感受。 大面积玻璃作为主要立面设计元素,为建筑带来了充足的自然采光,并将花园景观渗透进建筑内。

大型金属板用于雨篷和墙面支架以保护和强化此处的玻璃墙面,为建筑带来轻盈和高科技感的细部设计。

保护墙面玻璃的遮阳设施,不仅在白天抵挡了进入室内的强烈阳光,又可与LED夜景照明整体设计相结合,成为点缀与美化立面的美学构件。此建筑语言在医疗街室内设计中得以反复使用。高科技设计在解决自然带来的负面影响的同时,又为建筑增添了美学色彩。

室内设计

”自然之道”的设计理念通过医院的室内空间得以体现,并贯穿于病人的整个就医体验。如同建筑形体设计遵循自然法则中经典的几何比例,室内设计的理念亦采用了同样的原则。

采纳这种自然界存在的图形,成为有系统的组织基础,不但简化了病患就医体验,同时提供了舒适,简明的治愈环境,一体化高科技促成了高效的疗愈环境。它将花园元素引入室内, 并兼顾由大自然启迪带来的室内颜色,图案与纹理配置理念。

合肥京东方医院将会采用可持续性和地区可采购材料,适当的硬性和软性材料的使用以及耐磨损区弹性材质的应用将会长久保持设计的完整性。

病房、公共区域和等候区将自然景致最大化给病人带来积极的影响,室内材料色彩配置借鉴了室外花园的颜色与纹理,创造了一个宁静平和的放松休养的环境。

景观设计

合肥京东方医院的景观设计采用丰富的植被,铺地,景观椅,水景创造出精致的建筑入口、疗愈花园与屋顶花园,给使用者营造舒适、愉悦的环境,并提供沉思和社交的空间。

入口广场沿东方大道延伸,营造一个温馨宁静的氛围,缓解紧张的就医情绪。沿荃湖南路的绿色景观带与荃湖公园视觉上空间上一脉相承。小型疗愈花园特意设置在大片活动区内,以提供心灵缓解与治愈的场所,同时保证了消防扑救登高面拥有足够的空间。裙房及门诊楼屋顶设置屋顶花园,住院楼的阳台也同样考虑充满绿色。硬质铺地和其他景观小品的设计能够帮助人们直观地识别各个出入口, 同时也充分考虑到与远期建筑的空间延续,及京东方未来在基地之外的发展。

优秀的设计来自于默契的团队协作精神,与京东方与Dignity Health的无懈合作助力我们为合肥人民设计建造一所世界一流的医院。

本站申明:网友阅读本站内容,视为认同本站协议,协议详情请点击查看
标签:医疗建筑设计合肥京东方医院HKS

发表评论

最新评论