墨西哥:SUSHI-KOI餐厅
来源:网友深蓝气球投稿 2013-10-18
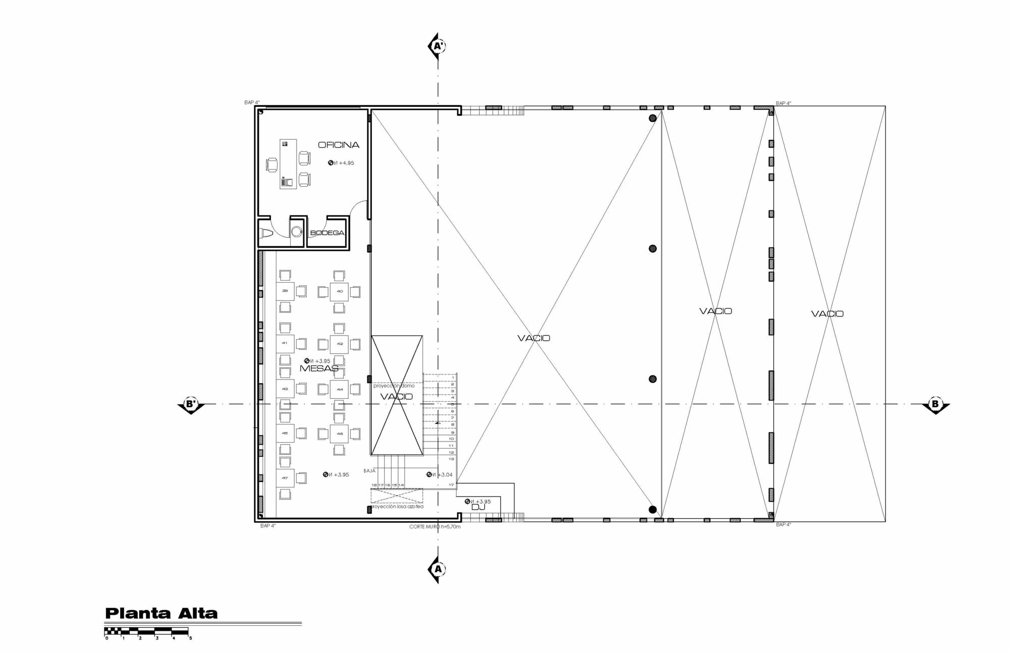
SUSHI-KOI餐厅位于墨西哥Aguascalientes市北部餐厅酒吧区内,设计旨在创建当代风格、引人注目的建筑。餐厅理念是展现日式美食和酒吧音乐的结合。主要外立面是竹林的抽象展示,项目分成三个区域,即露台、公共区和夹层,每个区域均有各自不同的外观和尺度。中央流通区成为设计重心,贯穿了餐厅所有空间。顾客首先从一块水面进入餐厅,穿过甲板,来到餐桌区,最终座位区旁边是一块鲤鱼池。
建筑设计: Grupo Spazio
建筑地点: 墨西哥Aguascalientes
建筑面积:528sqm
建筑年代:2013
发表评论
最新评论
投稿



