美国:旧金山的革新式叠层住宅
来源:匿名网友投稿 2012-04-09
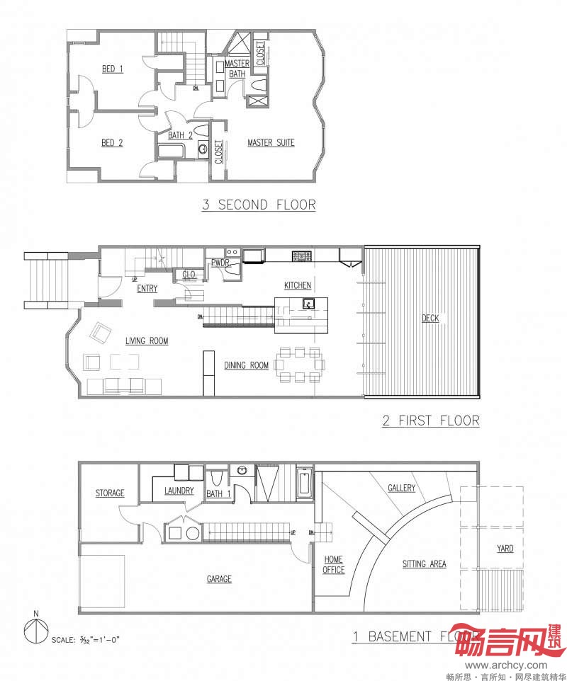
美国建筑师团队Feldman Architecture设计了这座位于加州旧金山的叠层住宅,该住宅在设计上颇具革新意义。

这座叠层建筑的革新设计理念在于力图将普通的双层建筑转型成为一个垂直结合的、现代化的花园式住宅。为了充分利用室外空间和自然光线,设计师找到了很好的解决办法,同时也使上下层之间形成了很好的互动性。

通过对之前未建造完成的地下室和户外地面空间进行改造,设计师创造出了一个新的居住空间和一个现代化花园。







本站申明:网友阅读本站内容,视为认同本站协议,协议详情请点击查看
标签:美国旧金山叠层住宅
发表评论
最新评论
投稿
