道仑毛都嘎查新牧区示范点建设规划设计
来源:匿名网友投稿 转载自:BIAD胡越工作室 2015-08-06
经济技术指标
总用地面积:135582 平方米
其中耕地面积27467 平方米
总建筑面积: 20800 平方米
包括:
住宅:20300 平方米(203×100 户)
村委会及配套服务:500 平方米
建筑高度、层数、层高
住宅:7.5 米/2F / 层高首层3 米、二层4.5 米
村委会及配套服务:4.5 米/1F
单栋建筑面积:203 平方米
容积率:0.15
绿化率:15.2%(未计算耕地、宅间及院内绿化)
设计构思
道仑毛都嘎查新牧区项目是德国被动房技术在中国境内的首个试点工程,希望借此打造优质绿色建筑示范点。我们的设计方案根据当地的风向与朝向确定建筑为南向偏东,并借助用地内土丘形成南高北低的总体布局,最大限度的保留原生态植被,形成绿海浮岛和沙上城堡的规划概念。
.jpg)
村中100户人家每户都拥有均好的居室和院落,并将其梳理形成一个中心、三个组团的规划格局,设有原生态绿海、观景平台、村中心、组团中心、运动健身、儿童乐园等人性化宜居设施、人车分流,组团内绿化层层递进,并通过建筑形态、色彩及原始地貌的保留,兼顾了民族特色和地方特色的表达,力图打造生态、宜居、充满人性化的新农村。
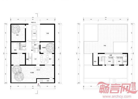
住宅单体注重均好性和多样性的设计理念,充分利用土地优势形成大面宽小进深的建筑平面,品质极佳。
.jpg)
.jpg)
.jpg)
.jpg)
.jpg)
.jpg)
.jpg)
.jpg)
户型一立剖图

户型一 平面图

总平面图
发表评论
最新评论
投稿