|
.jpg)
因为对其在布里斯班市佛特谷最近开业的办公室大胆的装修,Ellivo建筑工作室成为了行业内的热聊话题,各种评论纷纷而来,他们也享受着这样的情形。
.jpg)
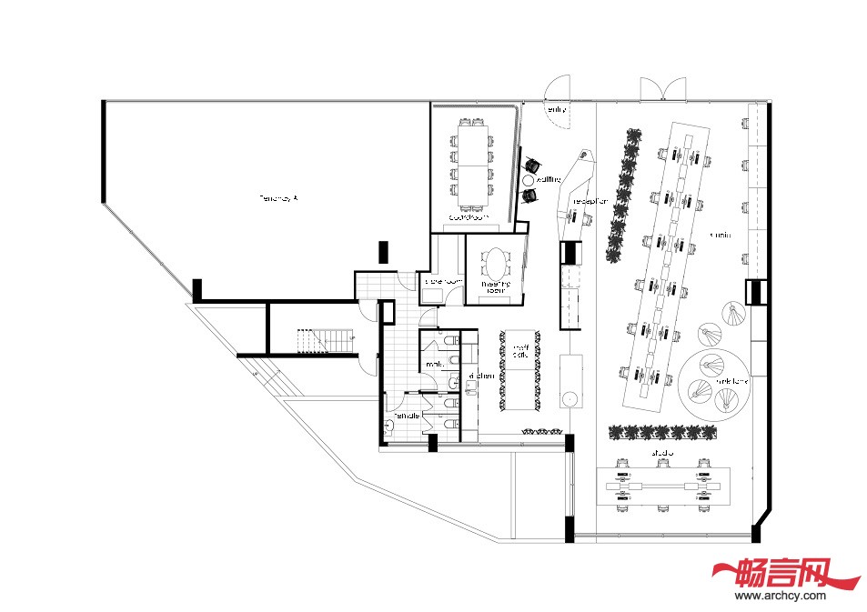
该办公空间在一个高层建筑的一层,几乎全部是黑色色调,只有星星点点的黄色和材料本身的颜色。设计小组希望装修后的办公空间既能让员工喜欢,又能让客户印象深刻,同时宣告该公司的主营业务。利用办公空间的外壳,他们介绍了该公司的服务和作品。同样,办公室开放的设计也是在向人们展示着自己,也在欢迎客户和顾问成为事务所环境中的一部分。
.jpg)
“它是现代时尚的典型代表,也向人们说明了我们是什么样的公司”,工作室总监Mason Cowle说,“作为一个建筑设计公司,在我们自己的办公空间向客户展示我们自己的实力这很重要。”
.jpg)
新的开放式的办公空间是整个小组共同合作构想、设计的,设计的核心来源于生命循环和极减派艺术。
设计师没有用不必要的材料去掩盖建筑骨架;办公空间里面的整体布局,如果有需要的话,还可以根据随意安排的之字形吊灯再次进行划分。
.jpg)
新办公空间为会议、创作和合作都提供了最好的地点,同时它也反映出这个年轻公司的文化和呈现优秀建筑设计的精神。

|