|
.jpg)
山坡牧屋滑雪旅馆位于美国蒙大纳州的黄石俱乐部,由Locati建筑事务所设计,已于2010年完成。该项目包括两套住宅,它们都离滑雪场地很近,而且都有很好的观山视野。为了保证该地区建筑的完整性,这些牧屋主要用木材、石头和回收的木料建造而成。
.jpg)
客户的首要要求就是让他的山区住宅成为一个理想的世外家庭、朋友游乐场地和短期住所,既能展示当地世界一流的滑雪场地,又有良好的群山围绕之美景。
.jpg)
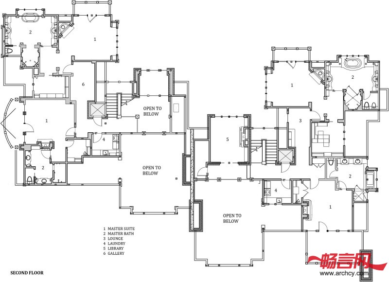
每个牧屋都配有满足奢华生活所需的各种设施以及娱乐室、酒吧、滑雪室、书房、和6间宾客套房。除了舒适的山上生活所必备的充足的室内空间外,牧屋旅馆还提供几个有屋顶的露台,让客人们更好的享受室内外生活。
.jpg)
这些露台上不仅有屋顶还有壁炉,所以一年四季都可以在这里聚会。
.jpg)
.jpg)
.jpg)
.jpg)
.jpg)
.jpg)
.jpg)
.jpg)
.jpg)
|