网站升级中

关闭
2023建筑行业十大评选

超万名行业内专业人士实名投票

秉持客观原则的非商业化评选

拉斐尔·莫内欧作品展示

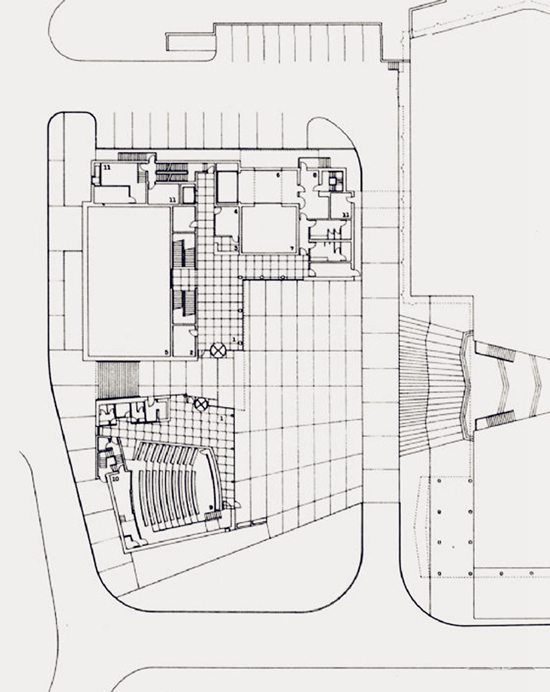
戴维斯博物馆和文化中心

项目名称:戴维斯博物馆和文化中心

建筑师:拉斐尔·莫内欧

项目地点:美国 马萨诸塞

项目时间:1989—1993年

该项目共四层,这四层建筑包括:一个出版研究办公室、一个有电梯直达的会议研究室,一个存放长期藏品的储藏室,一个可容纳168位的、装备有电影和电子媒体演讲设备的柯林斯电影院及其内部咖啡店,建筑物还设有儿童照料区域,职工工作空间及办公室等等。

本站申明:网友阅读本站内容,视为认同本站协议,协议详情请点击查看
标签:建筑设计巴塞罗那西班牙拉斐尔·莫内欧

发表评论

最新评论