网站升级中

关闭
2023建筑行业十大评选

超万名行业内专业人士实名投票

秉持客观原则的非商业化评选

拉斐尔·莫内欧作品展示

西班牙银行支行大厦

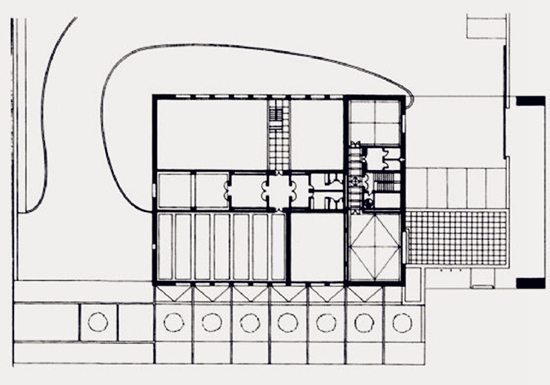
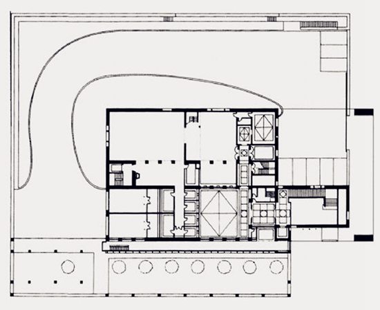
项目名称:西班牙银行支行大厦

建筑师:拉斐尔·莫内欧

项目地点:西班牙

项目时间:1972-1976年

这座新的银行支行办公楼,是极具空间品质的建筑物?;蛘咚担绻阍敢?,可以把它看作一个别具特色的保险箱,金钱在这里的运作是极其流畅和透明化的。

由于工作极度精密,设计师必须解决终端及所有的人和交通的运作问题,避免拥挤和故障造成的混乱、不安全因素的发生。

本站申明:网友阅读本站内容,视为认同本站协议,协议详情请点击查看
标签:建筑设计巴塞罗那西班牙拉斐尔·莫内欧

发表评论

最新评论