|

效果图(图片来源:百度)
林达海渔广场地处东四环内,西邻山水文园,东接华侨城、欢乐谷,南拥萧太后河。林达海渔广场总占地7.9万㎡,总建筑面积近20万㎡。被定位为六位一体的中国首席海洋文化城市综合体,项目由1栋19层5A级写字楼,3栋15层酒店式公寓,1栋20层五星级酒店,2栋5层独立商业楼,1.5公里商业街及1.5万㎡大型地下超市和5万㎡以海洋文化为主题的海渔公园组成。

总体规划(图片来源:百度)

项目内部(图片来源:百度)

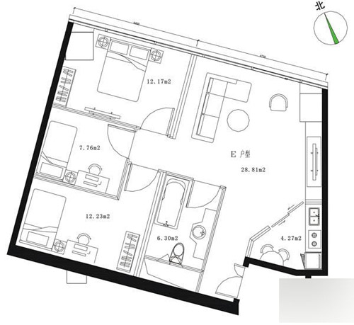
户型图(图片来源:百度)
在建筑布局上,如鱼得水,天人合一,海渔广场将不规则的建筑单体用鱼形的布置一气呵成,5A级写字楼做成鱼头的形状憨态可掬,高达40米的拱形鱼嘴拱门,将萧太后河的财气和贵气吸入整个海渔广场的商街内,寓意着海渔广场吉祥如意、生意兴隆、财源广进、年年有余。同时建筑物群体组合为阳的鱼,园林和3000㎡水面组合为阴的鱼,这一写意太极蕴含了和谐互补、天人合一的至高理想。

实景图(图片来源:百度)
项目首期即将推出的酒店式公寓部分,户型范围为53—119㎡,主力户型为83—99㎡两居室,全部精装修交房,层高高达3.6米,以极优的空间感和良好的落地窗采光,为居室带来了舒适的生活享受。尤其是项目东向的小户型,可以俯瞰整个5万㎡海渔公园和欢乐谷连成的宽阔绿化带,这种稀缺的景观资源与这么好的地块结合在一起,成就了一种建筑上的创举。
|